Holders Hill Avenue, London, NW4
£640,000
(Sold Subject To Contract)
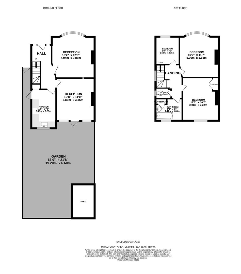
3
1
2
Key Features:
- 3 Bedroom Semi-Detached House
- In Need of Full Modernisation
- Large Rear Garden
- Chain Free
Summary:
Nestled on the desirable Holders Hill Avenue in Hendon, this three-bedroom semi-detached house presents an exciting opportunity for those looking to create their dream home.While the house is in need of full refurbishment, it offers a blank canvas for imaginative buyers to transform it into a modern living space tailored to their tastes. The potential for a rear extension and loft conversion (subject to the necessary planning permissions), further enhances the possibilities for expansion and improvement.The property comprises 2 reception rooms, kitchen with door leading to rear garden, 2 double bedrooms and a large single bedroom and bathroom with separate w/c.One of the standout features of this property is the large rear garden, providing ample outdoor space.Being sold chain free, this property allows for a smooth and straightforward purchase process. This house on Holders Hill Avenue is a fantastic opportunity to create a home that reflects your personal style and needs. Don’t miss the chance to explore the potential this property has to offer.
Full Details:
Viewing & Disclaimer:
Please contact us on 020 8357 0810 if you wish to arrange a viewing appointment for this property, or require further information.
Gravity Estates endeavour to maintain accurate depictions of properties in Virtual Tours, Floor Plans and descriptions, however, these are intended only as a guide and purchasers must satisfy themselves by personal inspection.
