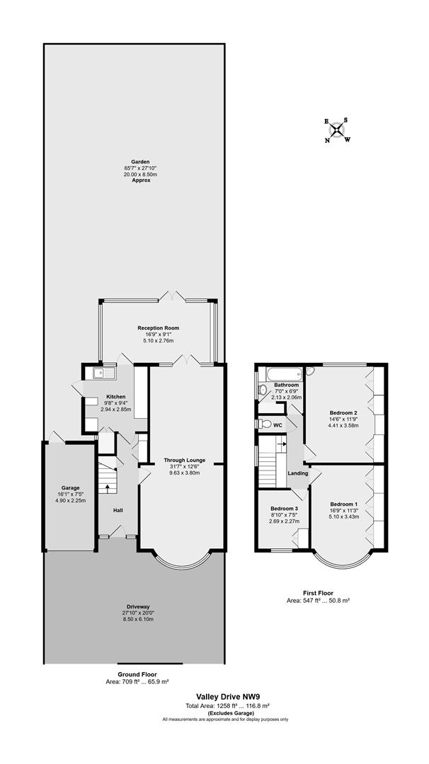
Valley Drive, London, NW9
£650,000
(Under Offer)
3
1
1
Key Features:
- 3 Bedroom Semi-Detached House
- Unmodernised
- Beautiful Rear Garden
- Driveway for 2 Cars and Garage
Summary:
Nestled in the highly sought-after Valley Drive in Kingsbury, NW9, this semi-detached house presents a remarkable opportunity for those looking to create their dream home. With three bedrooms, this property offers ample room for families or individuals seeking extra space. The house features a through lounge/dining room, providing a welcoming area for relaxation and entertainment.In need of full refurbishment, the potential to transform this house into a modern living space is immense, making it an ideal project for those with a vision. This house is perfectly positioned in arguably the best locations in Kingsbury, allowing for easy access to local amenities, schools, and transport links, including Kingsbury tube station (Jubilee Line) as well as Fryent Country Park, a beautiful open space with view point. Additionally, the property boasts a driveway that accommodates two cars, the road is also unrestricted. A garage further enhances the practicality of this home, providing extra storage or workshop space. The garden offers a delightful outdoor area, perfect for gardening enthusiasts.This semi-detached house is a blank canvas waiting for the right buyer to make it their own.
Full Details:
Viewing & Disclaimer:
Please contact us on 020 8357 0810 if you wish to arrange a viewing appointment for this property, or require further information.
Gravity Estates endeavour to maintain accurate depictions of properties in Virtual Tours, Floor Plans and descriptions, however, these are intended only as a guide and purchasers must satisfy themselves by personal inspection.
