Moss Lane, Pinner Village, HA5
£375,000
(Under Offer)
2
1
1
Key Features:
- Two Double Bedrooms
- 958 Year Lease
- Beautiful Communal Gardens
- Garage and Parking Space
- EPC Rating C
- Located in Heart of Pinner Village
Summary:
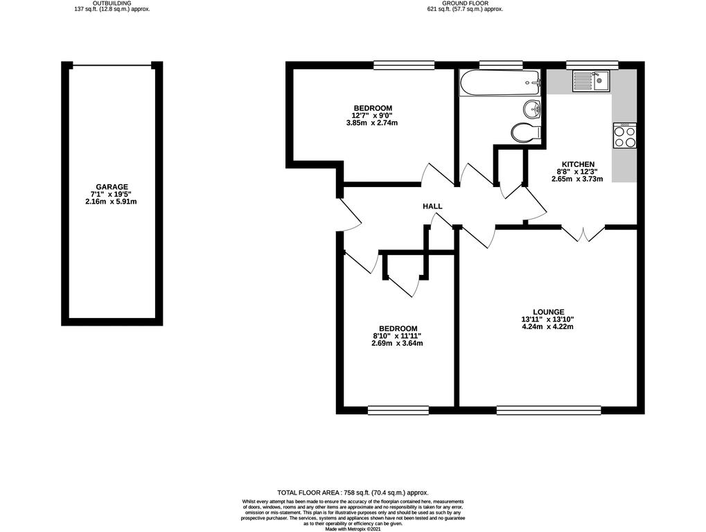
A well located two double bedroom first floor apartment off Moss Lane which is considered one of the most desirable residential roads in Pinner Village. Comprising 621 Sq Ft / 57.7 Sq M of accommodation and with stunning views directly over Halls Farm, as well as a 958 year lease and beautiful communal gardens. The property offers a bright and spacious lounge, fitted kitchen and bathroom as well as two double bedrooms.Further benefitting a garage (137 Sq Ft / 12.8 Sq M) and off street parking, as well as being offered Chain Free and situated within a 10 minute walk of Pinner Centre with its cafes, restaurants and various shops and the Metropolitan Line Tube Station, this apartment makes either an ideal investment or a great first home.
Full Details:
Viewing & Disclaimer:
Please contact us on 020 8357 0810 if you wish to arrange a viewing appointment for this property, or require further information.
Gravity Estates endeavour to maintain accurate depictions of properties in Virtual Tours, Floor Plans and descriptions, however, these are intended only as a guide and purchasers must satisfy themselves by personal inspection.
