Cavendish Avenue, Ruislip, HA4
£500,000
3
1
1
Key Features:
- 3 Bed Semi-Detached Bungalow
- Private Rear Garden
- Garage
- Potential to Extend (STPP)
Summary:
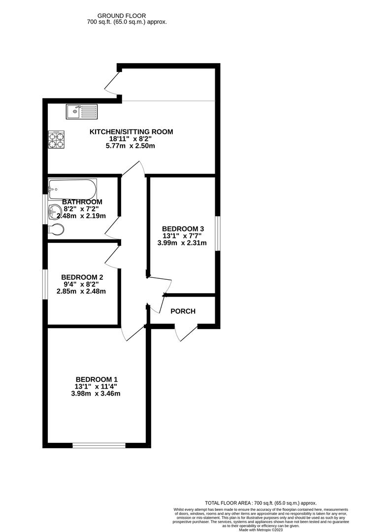
This rarely available 3 bedroom semi-detached bungalow situated on this sought after residential road and within easy reach of Eastcote High Street.The property comprises three double bedrooms, an open plan living room with luxury kitchen and patio doors leading to private rear garden. Further benefits include a garage and new wood flooring throughout as well as potential to extend (Subject to planning permission)The property is 0.4 miles away from South Ruislip High Street and Station (Central & Chiltern Line). The property is 0.9 miles from the sough-after Deanesfield Primary School and 0.8 miles from Queensmead High School.
Full Details:
Viewing & Disclaimer:
Please contact us on 020 8357 0810 if you wish to arrange a viewing appointment for this property, or require further information.
Gravity Estates endeavour to maintain accurate depictions of properties in Virtual Tours, Floor Plans and descriptions, however, these are intended only as a guide and purchasers must satisfy themselves by personal inspection.
